Proyecto Gestionado por la Fiduciaria La Nacional
Excelente Aparatamos para Vivir o Invertir. Proyecto ubicado en San Isidro, A solo 2 min del supermercado Olé, plazas comerciales, a 1 min de la autopista San Isidro, zona completamente urbanizada en municipio de Santo Domingo Este.
Descarga brochure del proyecto aqui
***Separa con solo $RD 20,000**
***Apartamentos desde 2,900,000***
***9 meses para completar Inicial***
***Aplica bono vivienda (12% del precio) a los compradores de su primera vivienda***
Amenidades del Proyecto
- Proyecto completamente cerrado
- Área de juegos infantiles
- Áreas comunes para los residentes
- 17 parqueos
Características del Proyecto
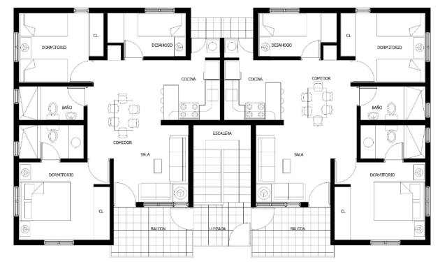
- 80 m2 incluye : 3 hab, 2 baños, balcón, cocina, sala, comedor, desayunador
- Cocina en granito
- Cocina y puertas en madera preciosa
- Ventana corredizas
- Ceramica importada en revestimientos
- Pre -insalación para aire acondicionado
- Area exlusiva (terraza) paracuarto nivel
Aquí les comparto algunas de las perspectivas!
Distribución

Frente del Proyecto

Lateral del Proyecto

Plano de distribución

Listado de Precios

Castillo Constructora e Inversiones Vende:
- 433 m2 de terreno con dirección al Mar
- Precio rebajado a $RD 12,000,000 (Ligeramente Negociable)
- Ubicado en la pujante zona de los Jardines del Sur, a solo 1 minuto del Parque Mirador Sur, a 4 minutos del Downtown Center, 4 minutos del Body Shop y Bella Vista Mall.
Información y citas:
Ing. Omar Castillo Zavala
829-864-1719 (ws)ww.castilloconstructora.com
RESIDENCIAL VILA ANDREA II
Proyecto Gestionado por la Fiduciaria La Nacional
Excelente Aparatamos para Vivir o Invertir. A solo 2 min del Instituto Técnico Superior Comunitario, a 1 min de la carretera mella, 3 min del supermercado Prestine en Santo Domingo Este, municipio de San Luis.
***Separa con solo $RD 10,000***
***11 meses para completar Inicial***
***Aplica bono vivienda (12% del precio) a los compradores de su primera vivienda***
Características del Proyecto
- Cocina en granito
- Cocina y puertas en madera preciosa
- Ventana corredizas
- Ceramica importada en revestimientos
- Pre -insalación para aire acondicionado
- Area exlusiva (terraza) para primer nivel y cuarto nivel
- 70 m2 incluye: Balcon, cocina, 3 hab, lavadero, sala, area común, parqueos
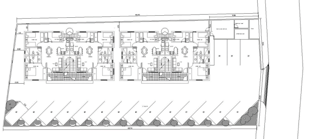
Planos, Uso de Suelo, Disponibilidad
Imágenes del Proyecto
Desarrollamos estudios de factibilidad para comprobar la viabilidad de proyectos de construcción y edificaciones comerciales. Estamos ubicados en Santo Domingo, República Dominicana. Los estudios de factibilidad incluye lo siguiente:
- Análisis financiero: Elaboración de modelo de flujo de caja para determinar los indicadores financieros de factibilidad tales como: indice de multiplicación de capital, TIR, ROI, Cap Rate, LTV, DCR, sensibilidad del proyecto..entre otros. Es decir, se determina la rentabilidad del proyecto.
- Análisis viabilidad comercial: Determinar si el proyecto debe ejecutarse. Es decir, comprobar a través de estudios técnicos, la existencia de una demanda que pueda absorber el proyecto. Incluye, análisis de precios y evaluación del proyecto en función de su localización, servicios, accesibilidad, tipo de terreno y zonas aledañas. También, se evalúa la propuesta de valor del proyecto.
- Análisis técnico: Determinar si el proyecto puede construirse consultando las normas de zonificación, antecedentes del terreno, normas de construcción .Por solicitud, realizamos la auditoria técnica de los diseños del proyecto y presupuesto.
- Plan de mitigación de riesgos: En función de las debilidades del proyecto, se elabora un plan para mitigar cualquier riesgo desde el punto de vista financiero, comerciales, técnico, administrativo.
Servicio dirigido: a promotores de viviendas, constructores, inversionistas, banco comerciales, fideicomisos.
Conoce los estudios de factibilidad y estudios de mercado que hemos realizado para importantes empresas de distintos sectores en la República Dominicana. Descarga nuestro brochure empresarial haciendo click aquí.
El costo del estudio de factibilidad dependerá del alcance establecido por el cliente. Para más información, llamar al 829-864-1719 o escribir un correo a ocastillozavala@gmail.com
Nuestros Clientes

Conoce nuestro trabajo
Te invitamos a leer nuestros más recientes artículos del mercado inmobiliario de la República Dominicana haciendo click aquí.
En nuestro canal de YouTube, TuPRIMERAviviendaRD, encontrarás todo el contenido necesario para que puedas tomar desiciones informadas respecto al mercado inmobiliario de la República Dominicana.
Mantente informado sobre lo ultimo del mercado inmobiliario dominicano siguiendo nuestra página de Instagram @inmobiliaria_castillord
Los montos de inversiones que se requiere para desarrollar proyectos de viviendas o comerciales son muy elevados. Una mala decisión de proceder con una inversión no rentable puede traer consecuencias funestas para el promotor, sus clientes y asociados.
El análisis aplicado para evaluar una oportunidad de inversión deber ir más allá de ver las ganancias de un proyecto. Ya que este método no toma en cuenta el valor del dinero a través del tiempo ni otras alternativas de inversión. El objetivo de este artículo es presentar la metodología de evaluación que los fondos de inversiones de Estados Unidos aplican al momento de proceder a invertir en proyectos de desarrollo de viviendas o comerciales.
Existen varios métodos para la evaluación de una propiedad inmobiliaria las cuales son las siguientes: (1) La metodología del costo (2) La metodología de comparación (3) La metodología del ingreso. La primera y la segunda metodologías se utilizan en propiedades inmobiliarias cuyo fin no es generar ingresos. La última es la metodología más utilizada por los analistas financieros para tomar decisiones de inversión y poder determinar el valor de las propiedades inmobiliarias que generarán ingresos a través del tiempo.
En Castillo Construction and investments, utilizamos el método del ingreso para desarrollar estrategias de inversión y determinar las factibilidad financiera de los proyectos inmobiliarios de viviendas o comerciales. Para entender cuando es factible desarrollar un proyecto inmobiliario se debe generar un pro-forma y los indicadores financieros que permitan al analista determinar si la inversión es financieramente viable.
A continuación explicamos los puntos que se deben tomar en cuenta para estudiar la factibilidad financiera de un proyecto inmobiliario.
1.Supuestos que vayan acorde a la realidad del mercado
El modelo financiero que será utilizado para crear el pro-forma y los indicadores de factibilidad deben de partir de supuestos (inputs) que representen, en lo mejor posible, lo que ocurre en la realidad. Por lo tanto, el analista debe tener una alta experiencia y conocimiento del mercado local para implementar exitosamente el análisis financiero del proyecto inmobiliario a desarrollar.
2. El valor del dinero a través del tiempo: el método del descuento (DCF)
El dinero es un bien económico tal y como lo es un televisor o un automóvil. Los inversionistas prefieren tener más dinero en vez de menos, por lo tanto la magnitud de los ingresos de los flujos de caja de un proyecto inmobiliario es importante.
Además, los inversionistas prefieren recibir dinero hoy en vez de tener que esperar para luego. Esto quiere decir que el valor del dinero recibido hoy no es el mismo valor que tiene el dinero en una semana. Por lo tantom hay que ajustar el valor del dinero futuro al valor presente. Esto es lo que se llama el “método de descuento” lo que en esencia resuelve el problema del valor del dinero a través del tiempo.
3. Riesgo
Los inversionistas o constructores deben ser compasados por el riesgo asumido al invertir en un proyecto de construcción. Mientras más riesgos, más beneficios se deben recibir. Por lo tanto, los ingresos futuros del proyecto producto de la venta o renta de unidades, deben ser descontado a una taza por el riesgo asumido.
En otras palabras, existe un costo de oportunidad para un inversionista al suministrar capital en un proyecto. Esto se debe porque el inversionista tiene otras opciones para invertir su dinero. Por lo tanto, la tasa de descuento que se utilizará para descontar futuros ingresos dependerá de la tasa de retornos que el inversionista pudiese recibir con otras oportunidades disponibles en proyectos similares o en el mercado de capitales.
4. Valor presente neto (VPN) mayor que cero y tasa interna de retorno (TIR)
La tasa interna de retorno (TIR) es un indicador indispensable en las finanzas inmobiliarias. Esto indica el rendimiento de la inversión y debe ser mayor a la tasa de retorno que ofrece otras alternativas. En otras palabras, el TIR mide el retorno de cada peso invertido para cada uno de los periodos donde se ejecutó una inversión.
El valor presente neto determina que el proyecto tendrá un flujo positivo o negativo. Consecuentemente, una inversión es viable cuando ofrece un valor presente neto positivo y una tasa interna de retorno mayor a otras alternativas de inversión.
Es importante resaltar que el hecho de que el proyecto genere ganancias no significa que es financieramente viable.
5. Composición del capital del proyecto
La evaluación financiera debe partir de donde vendrán los fondos para cubrir los gastos del proyecto. En los Estados Unidos la estructura de costo la conforma típicamente un 60% deuda, 40% aporte de capital.
Aunque no es el enfoque de este artículo, es importante resaltar que las tasas interna de retorno de proyectos inmobiliarios aumenta mientras menos capital se tiene que aportar. Es decir, mientras más apalancado es el proyecto, mucho mejor son los rendimientos. Esta estrategia dependerá de las condiciones del mercado local.
6. Indicadores de factibilidad
El modelo financiero inmobiliario debe determinar los siguientes indicadores:
- Capacidad del proyecto de cubrir el servicio de deuda
- La tasa de capitalización
- Multiplicador del ingreso neto
- Ratio de gasto de operación
- Tasa de dividendos
- Relación préstamo valor…entre otros.
Se deber tener mucho cuidado en el proceso de evaluación financiera antes de invertir en la construcción de un proyecto de vivienda o comercial. La viabilidad financiera de una inversión no se determina con solo los evaluar las ganancias de un proyecto y compararlo con la inversión. Es necesario tomar en cuenta el valor del dinero a través del tiempo y los indicadores que permiten analizar la inversión con profundidad.
Los interesados en indagar con más profundidad sobre el tema de evaluación financiera de proyectos inmobiliarios me pueden contactar. En los próximos días estaremos anunciando una conferencia online (webinar) sobre finanzas inmobiliarias. ¡Sería un placer contar con su participación!
Nota: Se destaca que la evaluación financiera es solo una de las herramientas que se deben utilizar para evaluar un proyecto de construcción. Otras deben ser tomadas en cuanta tales como: estudios de mercado, capacidad de pago de las personas, experiencia del promotor y constructor…entre otras.
Proyectos
- Ubicación: Santo Domingo Este
- Tipo: Residencial
- Unidades: 6
- Fase: Pre-venta
- Ubicación: Santiago
- Tipo: Residential
- Unidades: 48
- Fase: Pre-factibilidad
El dominicano Omar Castillo fue seleccionado junto a un grupo de 20 jóvenes empresarios para ser reconocido por su esfuerzo de canalizar inversión extranjera a República Dominicana.
La Asociación para el Desarrollo de Bienes Raíces Comerciales, NAIOP por sus siglas en inglés, seleccionó a 21 jóvenes profesionales para recibir el prestigioso premio “Desarrollo de Líderes 2016”, que otorga la institución. El premio anual honra a jóvenes profesionales menores de 35 años de edad por sus ejemplares logros profesionales, fuerte liderazgo y su participación comunitaria.
El presidente de NAIOP, Thomas J. Bisacquino, expresó que cada uno de esas personas emprendedoras se distingue por sus notables habilidades, logros y liderazgo en el sector inmobiliario comercial, por lo que dijo estar encantado de reconocer sus aportes.
El premio será entregado los días 26-28 de septiembre en Scottsdale, Arizona, Estados Unidos.
Sobre NAIOP
La Asociación de Desarrollo de Bienes Raíces Comerciales es una organización para desarrolladores, propietarios y profesionales relacionados en la oficina , industrial, comercial y de uso mixto de bienes raíces . NAIOP comprende 18,000 miembros en América del Norte.
Según su portal web, NAIOP avanza responsable de desarrollo de bienes raíces comerciales y aboga por una política pública eficaz.
El dominicano que será premiado es empresario, director ejecutivo de Castillo Construcción e Inversiones y miembro de la NAIOP.
Además del dominicano Castillo, dentro de los otros jóvenes que serán galardonados están: Brian Adamson, Taylor Arnett, Megan Burrows, Ryan Burrows, Sarah Covington, Mollie Fadule, Ari Firoozabadi, Carly Glova, Tiffany Greenidge, Liza Jablonski, Kate Jordan, Chris Marchildon, Ian Nichols, Brian O’Sullivan, Stephen Powell Jr. entre otros.
Discover Punta Cana aboard a fun and modern off-road vehicle and a brand new catamaran. Take the wheel and drive an exclusive route to a spectacular and unspoiled After a convenient pickup from your hotel, meet your guide and go over a brief orientation to your 4×4 vehicle. Hop on and set off for a day of adventuring in Punta Cana. First you ride through scenic, private property to an unspoiled beach that is simply stunning.
Then, get the chance to visit the most beautiful ecological reserve in the Caribbean where you can swim in the crystal-clear water of the lagoons. After you finish your off-road ride, go to the marina where you get on board a brand new catamaran aptly named Caribbean Sea.
Stop for a delicious meal at Playa Blanca Restaurant and enjoy free time on one of the beautiful beaches. Back aboard the catamaran, take in the amazing landscape, stopping at the natural pool where you could swim. Dry off and relax as you are taken back ashore, then to your hotel. See pictures below:
Castillo ConstructionWe are looking to partner with like minded investors who would like to invest in the Real Estate Market of the Dominican Republic by taking advantage of new government incentives for new developments. We are raising equity to develop the following project: Vila Andrea Residence II. Below you will see the financial analysis, project description, drawings and methodology. This project has been approved by one the most prestigious fiduciary in the Dominican Republic, Fiduciaria la Nacional. Also, the City hall of Santo Domingo Este have approved the land use.
Project Summary
Centric, located across the street of the Dominican Community college, secured neighborhood and access to the main avenue of the City are just the few highlights of the Vila Andrea Residence. This is an affordable housing project which counts with elegant building finishes which will make the tenants feel proud of where they live. In addition, this place is the perfect project for the family due to its secured and safe neighborhood.
Vila Andrea Residence – Project Detail
- Location: Caña Linda, Provincia Santo Domingo, Municio Santo Domingo Este
- Development type: Ground up, new development for sale
- Site dimension: 325 m2
- Total building Area: 592 m2
- Surface parking: 9 spaces
- General Contractor: Castillo Construction
- Groundbreaking: January 2017
- Completion (planned): February 2018
- Current project phase: pre-development
- Project approved by Fiduciaria La Nacional
- Land use approved by City Hall
Financial Feasibility Summary
- Internal Rate of Return: 65%
- Net return on equity: 38%
- Required equity: $USD 41,098
- Project lifetime: 17 months
Capital Stack break down
- Construction loan: 48%
- Pre-sales deposits: 21%
- Deferred fees and costs: 18%
- Investment capital: 13%
Project Characteristics
- Granite countertops
- Doors and beautiful wood
- kitchen Closets in aluminum and mirrorsSliding
- aluminum windows and glass Flats in porcenalato
- Imported ceramic
- tile bathrooms and kitchens
- Plaster ceilings and cornices
- Pre -installation of air Split
- Exclusive area on the roof for 4th levels
Site and Floor Plan
Schedule free showing Request more info Price range:164,900-189,900 USD
This project consist of 123 luxury livings located at the paradise of Punta Cana. All apartments have a view to the beautiful L-Shape pool and to the Golf Course. The private beach is only meters away exclusively for the joy of the property owners. See pictures below.
Amenities
- L-Shape pool of 690 m2 with view to the Cana Bay golf court
- Adult Jacuzzi + pool for kids
- Gym
- Supermarket
- Administrative offices
- Prestigious Cana Bay Bar and Restaurant (located within the pool area)
- Gazebo for social activities
- Playground to bring joy to the kids
- 24 hour security + closed residential + access control
Additional added Value
- A beautifully designed bridge that goes through the center of the L-Shape pool which connect the Lobby bar restaurant with the residential area.
- Each building comes with a wide and comfortable elevator.
- The apartment includes a parking lot space
- The Cana Bay club house and private beach are only 1 km away.
- Per the new Dominican Law No. 158-01 the Cana Bay project is exempt of the following taxes:
- Transfer of property rights (3%) of the property value
- Yearly real estate taxes (1%) of the value of the property
Apartment types and cost
- First floor -112 m2
- $USD 164,900
- Two bedrooms
- Two Bathrooms
- Private garden
- Type Bass apartment
- Second floor – 101.95 m2
- $USD 154,900
- Two bedrooms
- Two Bathrooms
- Type Drum aparment
- Third floor (penthouse)- 172.5 m2
- $USD 189,900
- Two bedrooms
- Two Bathrooms
- Guitar type apartment
- Solarium
- Private terrace
- Jacuzzi+ BBQ area
Schedule a free site visit by sending an email or calling at +1- 829-864-1719
Pictures
Castillo – Consultores Inmobiliarios 

























Comentarios recientes